55726

Λεωφόρος Πόρτο Ράφτη, Μαρκόπουλο Μεσογαίας, 19003

Βασικά χαρακτηριστικά

Κατασταση
Πουλήθηκε
τυπος
Μονοκατοικία
Συνολικοι οροφοι κτιριου
2
Υπνοδωματια
2
Κουζινες
1
Μπανια
1
Καθιστικα
1
WC
1
Μπαλκονια
5
Τυπος Σταθμευσης
Ανοιχτο
Ετος κατασκευης
2008
Εμβαδον οικοπεδου
2268

Περιγραφή

Στο Μαρκόπουλο Αττικής (περιοχή Τζούλη), διώροφη μονοκατοικία 187 τμ, κατασκευής του 2008, σε οικόπεδο 2268 τ. μέτρων. Το πρώτο επίπεδο αποτελείτε από σαλόνι, κουζίνα, στούντιο ,WC και 2 μπαλκόνια. Το δεύτερο επίπεδο από 2 υπνοδωμάτια με μπαλκόνι και ένα ευρύχωρο μπάνιο. Ο ημιυπόγειος χώρος 77τμ χρησιμοποιείτε ως αποθήκη, ωστόσο έχει υποδομή κατοικίας με ανεξάρτητη είσοδο. Η γη του οικοπέδου είναι καλλιεργήσιμη και περιέχει 24 ελιές, 2 λεμονιές, μια συκιά και 40 κυπαρίσσια. Το ακίνητο διατίθεται μαζί με τον εξοπλισμό και τα έπιπλα, διαθέτει κουφώματα αλουμινίου με διπλά τζάμια, θέρμανση με καυστήρα πέλλετ, τζάκι και ηλιακό θερμοσίφωνα. Βρίσκετε 4 λεπτά από την αττική οδό, 9 λεπτά από το αεροδρόμιο και 5 λεπτά από την θάλασσα.

Βίντεο 360˚

Ισόγειο

Βίντεο 360˚

Α όροφος

Βίντεο 360˚

Ταράτσα

Βίντεο 360˚

Οικόπεδο

Παροχές

Πάρκινγκ
Κλιματισμός
Τζάκι
Αποθήκη εντός ακινήτου
Στάση λεωφορείου
Επιπλα
Κήπος
φιλικό προς κατοικίδια
Ηλιακός

3D

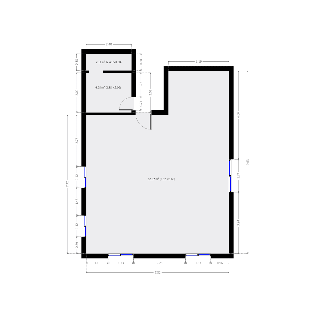
Κατόψεις

Εξερευνήστε την περιοχή

Συγκοινωνια
Εστιατορια
Καταστηματα
Καφετεριες & Μπαρ
Τεχνες και ψυχαγωγια
Γυμναστηρια

Υπολογισμός δόσης δανείου

ανά μήνα
Κεφαλαίου και τόκων
Φόροι ιδιοκτησίας
Κοινόχρηστα